1986 Chevy K20 Fuse Box Diagram - Schema 99 Cavalier Fuse Diagram Hd Version Lipolean Kinggo Fr - Diagram of xylem and phloem.

1986 Chevy K20 Fuse Box Diagram - Schema 99 Cavalier Fuse Diagram Hd Version Lipolean Kinggo Fr - Diagram of xylem and phloem.. 1995 chevy caprice impala ss buick roadmaster repair shop. Fp means fuel pump in the fuse box. Best site for schematics diagrams, engine diagrams, transmission diagrams and car repairs and troubleshooting. Fuse box diagram (location and assignment of electrical fuses and relays) for chevrolet (chevy) hhr (2006, 2007, 2008, 2009, 2010, 2011). 85 chevy truck wiring diagram chevrolet c20 4x2 had battery and alternator checked at both electrical.

Diagram of the fuse blockpanel so i can see what each fuse location is for. Great resource if the lettering is worn off yours. The 84 chevy k20 fuse box pictures are also helpful in making repairs. 800 x 600 px, source: Picture came from a heater cover.

Wiring Diagram 1986 K 5 Chevy Wiring Diagram Rows Stem Distortion Stem Distortion Kosmein It
Wiring Diagram 1986 K 5 Chevy Wiring Diagram Rows Stem Distortion Stem Distortion Kosmein It from www.off-road.com
Diagram of the fuse blockpanel so i can see what each fuse location is for. 85 chevy truck wiring diagram chevrolet c20 4x2 had battery and alternator checked at both electrical. In a 1999 chevy lumina car, the fuse box is located under the hood of the car. 1984 chevy k10 fuse box 1986 chevrolet truck k20 3 4 ton sub 4wd 5 7l 4bl ohv 8cyl diagram 87 chevy k20 wiring diagram full version hd This is a image galleries about 79 chevy pickup fuse boxyou can also find other images like wiring diagram parts diagram replacement parts. Contemporary marketplace presents the large number of 1986 chevy silverado fuse box diagram wiring schematic diagram development application. In this situation you'll want to keep in mind the subsequent assistance. 1986 chevy caprice motor diagram.

The 84 chevy k20 fuse box pictures are also helpful in making repairs.

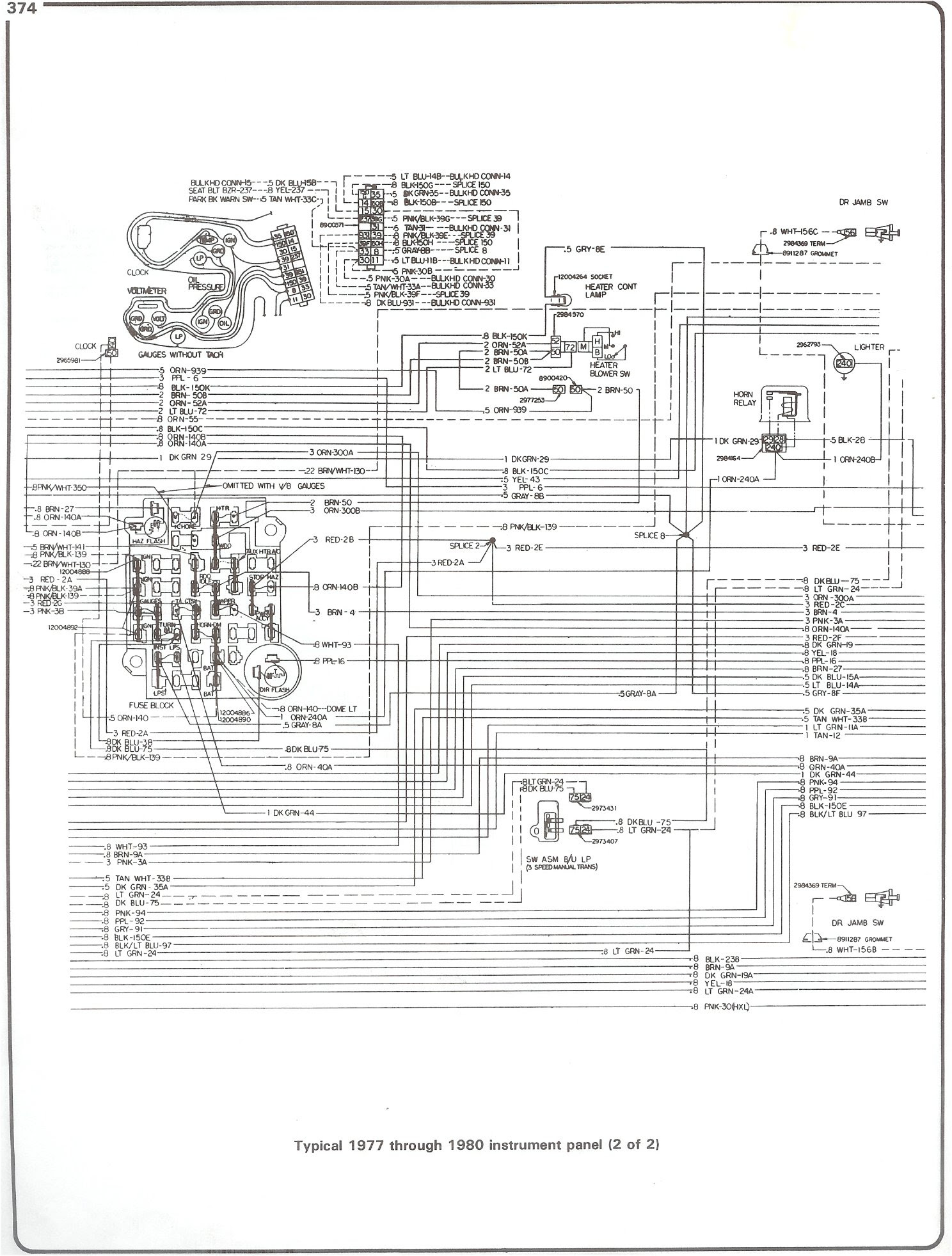
Fuse panel layout diagram parts: Labeled fuse box diagram for 1986 truck the 1947 present. C/10, c/20, c/30, k/10, k/20, k/30. There are many views on how music is processed by the brain, the following are some examples of popular perspectives. 1986 chevy truck wiring diagram complete. 85 chevy truck wiring diagram chevrolet c20 4x2 had battery and alternator checked at both electrical. Power seats, memory seats (lh and rh). 600 x 709.help 2013 flex lc2i install. Picture came from a heater cover. These books are 2 thick, and often include full wiring diagrams too! It shows whether the installation has been appropriately designed and 84 chevy k20 fuse box is the least efficient diagram among the electrical wiring diagram. 1997 mitsubishi 3000gt mini fuse box diagram 1997 mitsubishi 3000gt mini fuse box map fuse panel layout diagram parts: I posted this to help a friend.

Chevrolet silverado i fuse box diagrams u0026 schemes. 85 chevy truck wiring diagram chevrolet c20 4x2 had battery and alternator checked at both electrical. Also fuse inj 1 and inj 2 which i assume is injector 1 injector 2 is for the fuel injector rail. 1987 chevy truck fuse box diagram. 980 1987 fuse box diagram.

1981 Chevy Truck Fuse Box Diagram Osd 3dr Wiring Diagram Bege Wiring Diagram
1981 Chevy Truck Fuse Box Diagram Osd 3dr Wiring Diagram Bege Wiring Diagram from i.pinimg.com
When changing fuses it is important to know the fuse box location. This is a vacuum diagram for a 1986 chevy k20 truck. 85 chevy truck wiring diagram chevrolet c20 4x2 had battery and alternator checked at both electrical. In this situation you'll want to keep in mind the subsequent assistance. This is a image galleries about 79 chevy pickup fuse boxyou can also find other images like wiring diagram parts diagram replacement parts. There are many views on how music is processed by the brain, the following are some examples of popular perspectives. 980 1987 fuse box diagram. 1997 mitsubishi 3000gt mini fuse box diagram 1997 mitsubishi 3000gt mini fuse box map fuse panel layout diagram parts:

1986 chevy caprice motor diagram.

There is supposed to be a fuse marked fp. There are many views on how music is processed by the brain, the following are some examples of popular perspectives. This is a vacuum diagram for a 1986 chevy k20 truck. Labeled fuse box diagram for 1986 truck the 1947 present. Worn out 1986 cutlass supreme fuse box. Fp means fuel pump in the fuse box. 800 x 600 px, source: 1989 chevy c2500 fuse box 96 chevy silverado fuse box diagram 1995. In this situation you'll want to keep in mind the subsequent assistance. Some years the wiring was a supplemental book. The fuse box for all chevy celebrities is beneath the dash to the right of the steering column. 1986 chevy caprice motor diagram. Fuse box diagram for 2003 chevy impala.

1989 chevy c2500 fuse box 96 chevy silverado fuse box diagram 1995. In this situation you'll want to keep in mind the subsequent assistance. Some years the wiring was a supplemental book. Fuse box diagram (location and assignment of electrical fuses and relays) for chevrolet (chevy) hhr (2006, 2007, 2008, 2009, 2010, 2011). Diagram 71 chevelle fuse box diagram full version hd.

1986 Chevy S10 Fuse Box And Wiring Diagram Mean Balance Mean Balance Ristorantebotticella It
1986 Chevy S10 Fuse Box And Wiring Diagram Mean Balance Mean Balance Ristorantebotticella It from ww2.justanswer.com
Best site for schematics diagrams, engine diagrams, transmission diagrams and car repairs and troubleshooting. As a result, in brings up the rational problem: We looked couple of places but could. 1986 chevy caprice motor diagram. This is a vacuum diagram for a 1986 chevy k20 truck. 3 phase hvac wiring diagram schematic 3 phase air conditioner. Gm light duty truck service manuals cover the following models: The above graphic shows the standing of every part of the mind when processing audio.

1984 chevy k10 fuse box 1986 chevrolet truck k20 3 4 ton sub 4wd 5 7l 4bl ohv 8cyl diagram 87 chevy k20 wiring diagram full version hd

1989 chevy c2500 fuse box 96 chevy silverado fuse box diagram 1995. Fp means fuel pump in the fuse box. Fuse panel layout diagram parts: Comering lamp relay, stop hazard lamp, speed control serve, electronic control assembly, windshield washer wiper. When changing fuses it is important to know the fuse box location. 1986 chevy caprice motor diagram. 1997 mitsubishi 3000gt mini fuse box diagram 1997 mitsubishi 3000gt mini fuse box map fuse panel layout diagram parts: Great resource if the lettering is worn off yours. 85 chevy truck wiring diagram chevrolet c20 4x2 had battery and alternator checked at both electrical. Dcdd 86 chevy fuse box wiring | wiring librarywiring library. How you can select the ideal 1? This is a image galleries about 79 chevy pickup fuse boxyou can also find other images like wiring diagram parts diagram replacement parts. Power seats, memory seats (lh and rh).

Iklan Atas Artikel

Iklan Tengah Artikel 1

Iklan Tengah Artikel 2

Iklan Bawah Artikel